0

Loading ...
Our Works施工事例詳細

広々LDKにリフォーム

広々LDKにリフォーム
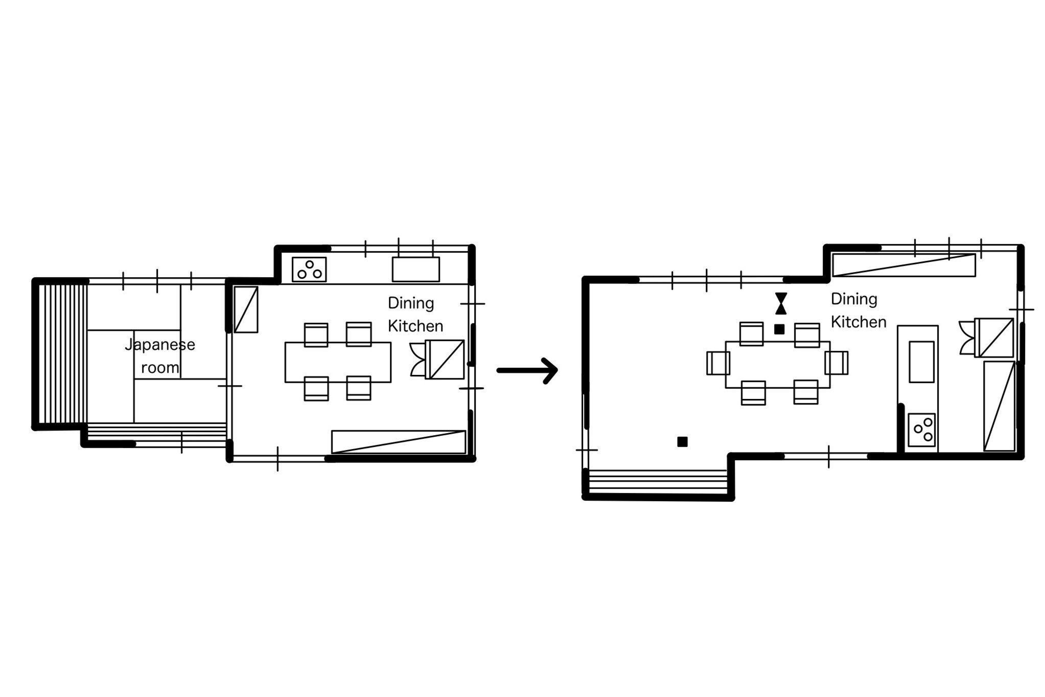
House Layout

間取り

壁付けキッチンから対面キッチンに✨

使い方を見出せず長年物置になっていた隣の和室を思い切ってダイニングと繋げて広い空間に作り変えました。これからは3世帯の家族が集まっても窮屈にならないくらいの広々としたダイニングで生活していただけます!?


https://www.miyazawa-koumuten.com/storage/2072/conversions/IMG_7136-normal.jpg
https://www.miyazawa-koumuten.com/storage/2066/conversions/IMG_4825-normal.jpg

Details

  • CATEGORY:
    リフォーム
  • STYLE:
    木造2階建て
  • PLACE:
    飯綱町
来客時、キッチンの中が見えるのを防ぐため対面キッチンに👍リビングもよく見渡せます。
抜けない筋交いはアラワシにしてアクセントに!
Drag View Close play
0%